PolyLine
  • Home
  • Over Ons
  • Diensten
  • Projecten
  • Contact

Selecteer Pagina

Woonhuis Boezemlaan Boskoop

door Interforce | nov 25, 2020 | 0

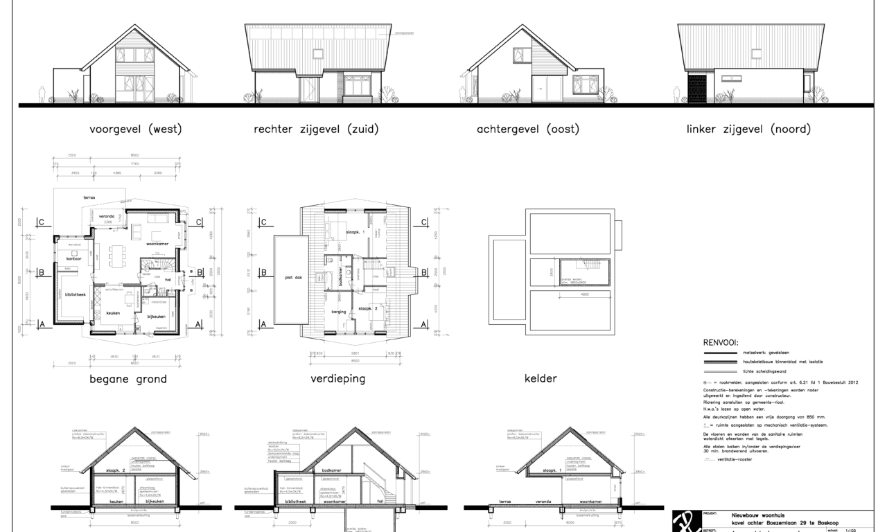
Woonhuis Boezemlaan Boskoop
Woonhuis Boezemlaan Boskoop
Woonhuis Boezemlaan Boskoop
Nieuwbouw woonhuis Boezemlaan Boskoop

Op een vrije kavel een nieuw te bouwen woonhuis ontworpen en afgestemd geheel naar eisen en wensen opdrachtgever.

Categorieën:
  • In ontwikkeling of uitvoering
Vaardigheden:
  • Bekijk het project

Meer projecten in deze categorie

Woonhuis biezen boskoop

Woonhuis biezen boskoop

Nieuwe bedrijfsvestiging industrieterrein

Nieuwe bedrijfsvestiging industrieterrein

Woonhuis Boezemlaan Boskoop

Woonhuis Boezemlaan Boskoop

Woningenhof Hazerswoude-dorp

Woningenhof Hazerswoude-dorp

Uitbreiding bedrijfscomplex Montfoort

Uitbreiding bedrijfscomplex Montfoort

2 woningen Benthuizen

2 woningen Benthuizen

2 woningen waarder

2 woningen waarder

Project Biezenlanden Boskoop

Project Biezenlanden Boskoop

Nieuwbouw bedrijfsruimte Waddinxveen

Nieuwbouw bedrijfsruimte Waddinxveen

Herbestemming kantoor Alphen aan den Rijn

Herbestemming kantoor Alphen aan den Rijn

Herbouw zomerhuis Alphen aan den Rijn

Herbouw zomerhuis Alphen aan den Rijn

Herbestemming schuur en hooiberg Mijdrecht

Herbestemming schuur en hooiberg Mijdrecht

Verbouwen bedrijfsruimte naar appartementen Waddinxveen

Verbouwen bedrijfsruimte naar appartementen Waddinxveen

Nieuwbouw bedrijfsunits Boskoop

Nieuwbouw bedrijfsunits Boskoop

Ontwikkeling nieuwbouw woonhuis Boskoop

Ontwikkeling nieuwbouw woonhuis Boskoop

Nieuwbouw zwembad bij woonhuis Reeuwijk

Nieuwbouw zwembad bij woonhuis Reeuwijk